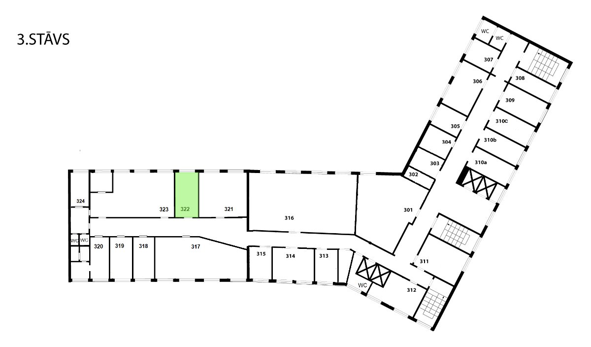
О помещение:
С начала октября 2025 года будет доступен небольшой и светлый офис на 3-м этаже здания (имеется лифт). Помещение в хорошем состоянии. На этаже располагается общий санузел.
| Сколько помещение: | 1 |
| Этаже: | 3/3 |
| Наименование: | 322 |
| Область: | 20.00 м 2 |
| Арендная плата: | 6.00 €/м2 |
| Управленая плата: | 1.25 €/м2 |
| Плата за отопление: | 3.20 €/м2 |
| Цена на электроэнергию: | 0.22 €/kWh |
*Указанные цены не включают налог на добавленную стоимость (НДС)
Преимуществ:
- Возможность припарковать машину бесплатную парковку возле здание, и также oчень удобный доступ на общественном транспорте (Автобус 3. остановка “Iļģuciems” трамвай 5. остановка “Iļģuciems”).
-
В офисе есть все необходимые коммуникации, - здание оборудовано камерами видеонаблюдения и охраной на 1 этаже.
- На территории бизнес-парка “Forums” есть кафе, салон красоты, магазин канцтоваров, интернет-магазин.





